
1/13
Das Mehrfamilienhaus an der Kreuzstrasse zeichnet sich durch seine besondere Lage als Teil einer kleineren Blockrandbebauung mit Innenhof am Kreuzplatz aus.
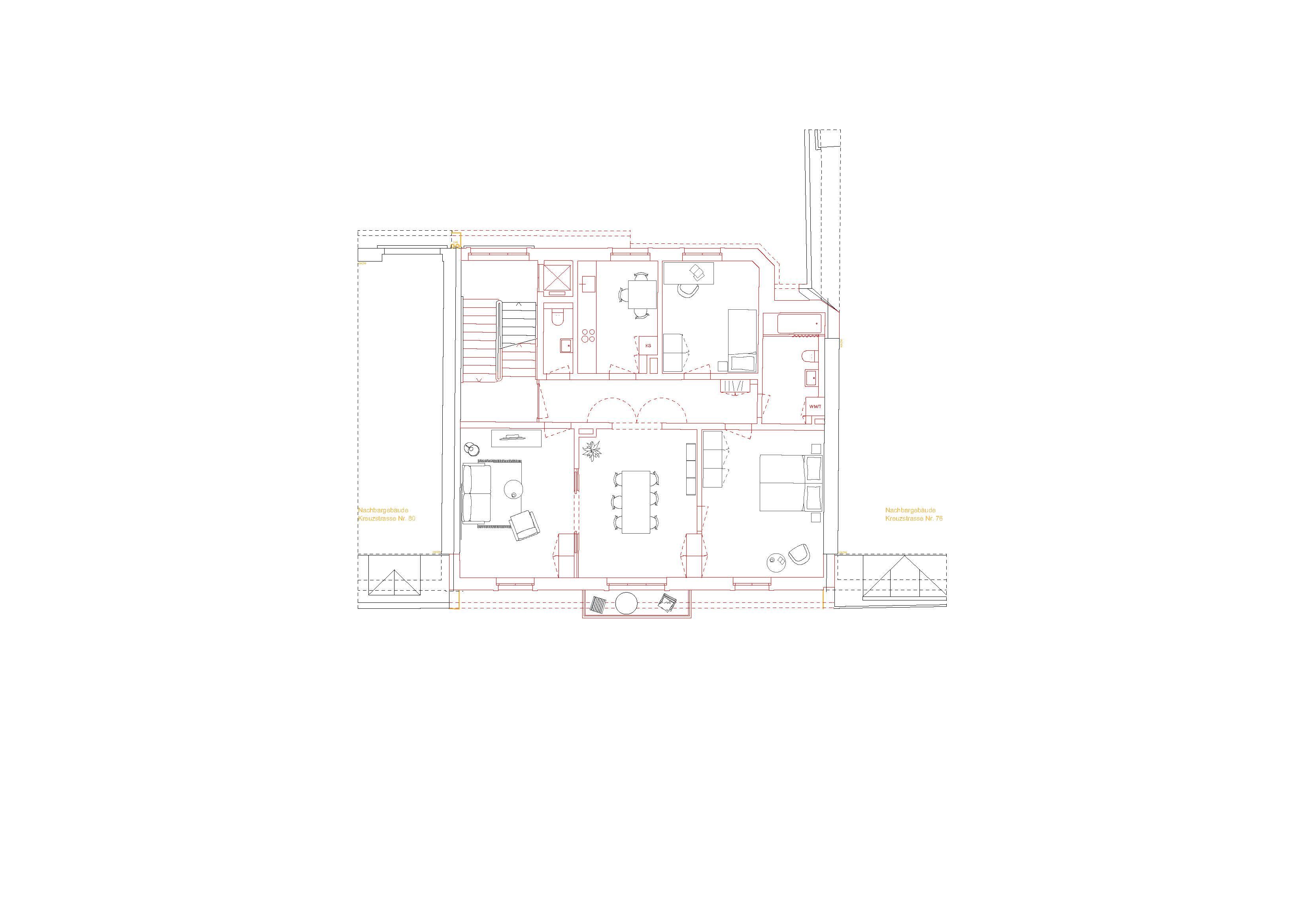
Viele historische Elemente sind noch erhalten und tragen zur stimmungsvollen Atmosphäre des Hauses bei. Die bestehenden Wohnungen überzeugen durch wohlproportionierte und gut organisierte Grundrisse mit guter Belichtung aller Räume.
Die geplante Aufstockung des Gebäudes verlangt eine hohe Sensibilität für den gebauten Kontext um das Dach als zeitgemässe und stimmige Weiterentwicklung im Sinne der inneren Verdichtung lesen zu können.
Diese architektonischen und städtebaulichen Qualitäten wollen wir mit der Sanierung und Aufstockung aufnehmen. Dabei greifen wir auch beim Tragwerk und den haustechnischen Installationen auf das robuste Vorhandene zurück.
- 2023
- Wohnen












